4 Bedroom Terraced For Sale
Seymour Road, Trowbridge, Wiltshire, BA14 8LX
Guide Price £280,000

Key Features

  • Four Bedrooms
  • Mid Terraced
  • Parking
  • Generous Rear Garden
  • Three Reception Rooms
  • Nearby Local Amenities
  • Owned solar panels

Summary

A spacious and well-presented four-bedroom mid-terraced house, offering versatile family accommodation in a popular and convenient location.

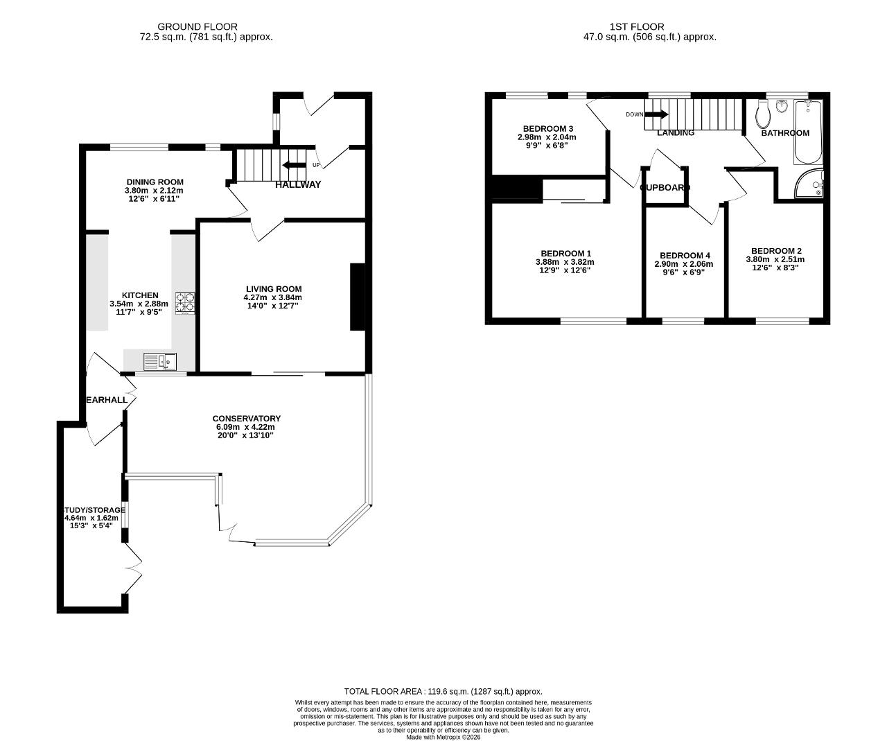
The property is entered via the entrance hall, which provides access to the separate living room, a bright and comfortable space ideal for relaxing or entertaining. The kitchen/dining area is accessed directly from the hall and offers plenty of room for family meals, with space for dining furniture and practical storage. Both the living room and kitchen provide access to the conservatory, a light and airy extension that overlooks the rear garden and creates a flexible space for dining, relaxing, or hobbies. Off the conservatory is a playroom, perfect for children, a home office, or a hobby area.

On the first floor, there are four well-proportioned bedrooms, including a generous main bedroom and three further good-sized rooms, all able to accommodate wardrobes or storage units. The family bathroom is fitted with a bath, hand basin, and WC, and the landing benefits from a storage cupboard, providing practical space for linens and household items. The layout of the first floor ensures comfortable accommodation for a family while maintaining a sense of privacy between the rooms.

Externally, the property boasts a good-sized rear garden, ideal for outdoor entertaining, relaxing, or for children to play safely. At the front, there is parking space, adding convenience for residents and visitors.

Location

The property is situated in a popular residential area of Trowbridge, close to a variety of local shops, supermarkets, and everyday amenities. There are several well-regarded primary and secondary schools within easy reach, making it ideal for families. The area is well-served by bus routes, and Trowbridge train station provides links to Bath, Bristol, and beyond. For leisure, there are parks, sports facilities, and local cafés nearby, while the town centre offers a wider range of shops, restaurants, and entertainment options. Major road networks are also easily accessible, providing convenient routes to surrounding towns and cities.

Additional Information

EPC Graph

For further information on this property please call 01225 983 910 or e-mail [email protected]

Fees Information

Interested in this property?

01225 983 910

Enquire/request a viewing

Share this property:
OmbudsmanRightmoveZooplaOnthemarketPrimelocation BroadbandUK logo